Ruime woning (188 m²) met 5 slaapkamers, 2 badkamers en buitenruimte (30 m²) in Borgerhout.
De Van Daelstraat biedt een centrale ligging tussen de Turnhoutsebaan en de Plantin en Moretuslei, maar toch woon je hier opvallend rustig in hartje Borgerhout. Dankzij deze gunstige ligging profiteer je van een uitstekende bereikbaarheid met het openbaar vervoer, het Velo-deelsysteem én de wagen. Bovendien vind je in de directe omgeving een ruim aanbod aan (lokale) winkels en voorzieningen voor je dagelijkse boodschappen.
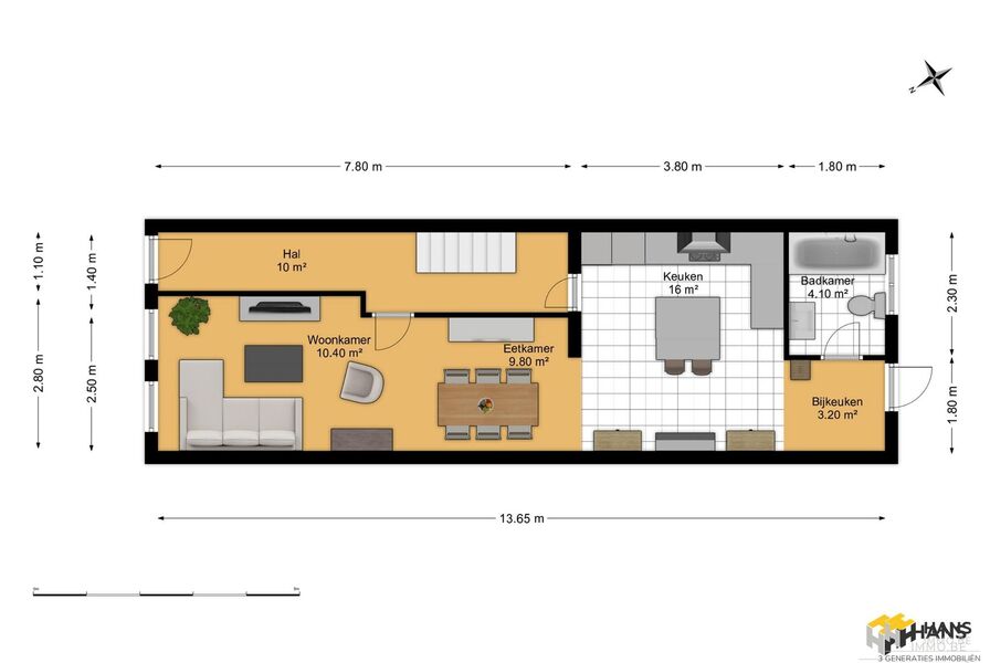
Met een bewoonbare oppervlakte van zo’n 188 m², 5 slaapkamers en 2 badkamers biedt deze charmante woning alle ruimte en comfort die een groter gezin nodig heeft. In 2013 werd het volledige gelijkvloers vernieuwd en werden er bovendien dubbele PVC-ramen geplaatst, wat zorgt voor extra woonkwaliteit. Dankzij de royale indeling en het veelzijdige karakter van het pand vindt iedereen hier moeiteloos zijn eigen plek én zijn er tal van mogelijkheden om de woning volledig naar wens in te richten.
Binnenkomen doe je in de inkom- en traphal. Rechts kom je in de leefruimte terecht, een doorlopende en bijzonder ruime zone van 40 m² waar woon- en eetgedeelte naadloos in elkaar overvloeien. Centraal ligt de open leefkeuken, uitgerust met alle hedendaags comfort. Achteraan bevindt zich de eerste badkamer (4 m²) met ligbad, lavabomeubel, toilet en handdoekdroger. Via een schuifdeur stap je zo de zuid-georiënteerde stadstuin van 30 m² in — een fijne buitenplek midden in de stad.
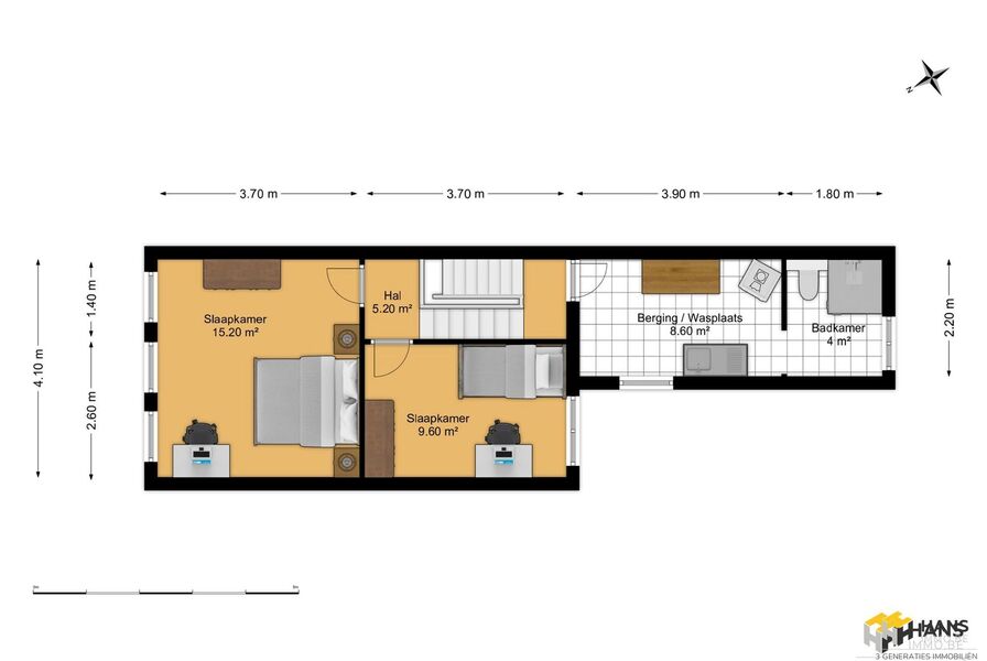
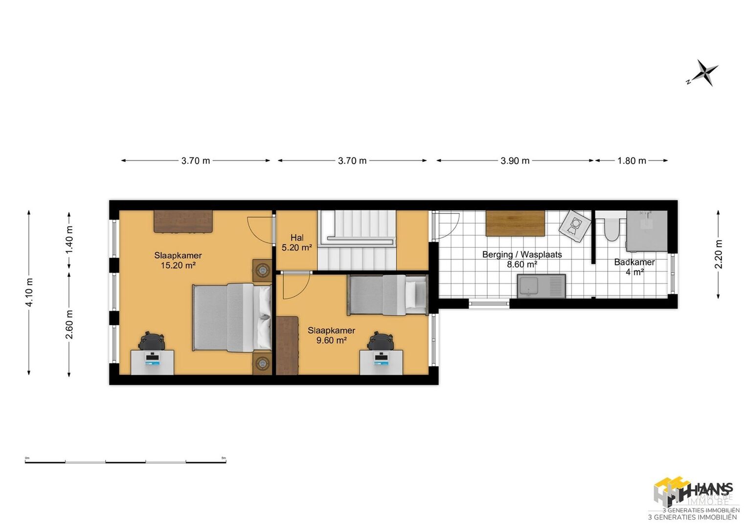
Op de eerste tussenverdieping ligt een eerste slaapkamer van 13 m². Eén niveau hoger vind je een praktische berging/wasplaats (9 m²) met aansluitend de tweede badkamer (4 m²), voorzien van toilet en douchecabine. De eerste en de tweede verdieping hebben dezelfde indeling, telkens met een slaapkamer van 15 m² aan de voorzijde en een slaapkamer van 10 m² aan de achterzijde.
Ben je op zoek naar een royale gezinswoning met ruimte op elke verdieping? Mis deze kans niet!
Bewoonbare opp. 188 m² ref.: bruto vloeropp. EPC. Voor meer info of een gratis schatting surf naar www.hansimmo.be
Met een bewoonbare oppervlakte van zo’n 188 m², 5 slaapkamers en 2 badkamers biedt deze charmante woning alle ruimte en comfort die een groter gezin nodig heeft. In 2013 werd het volledige gelijkvloers vernieuwd en werden er bovendien dubbele PVC-ramen geplaatst, wat zorgt voor extra woonkwaliteit. Dankzij de royale indeling en het veelzijdige karakter van het pand vindt iedereen hier moeiteloos zijn eigen plek én zijn er tal van mogelijkheden om de woning volledig naar wens in te richten.
Binnenkomen doe je in de inkom- en traphal. Rechts kom je in de leefruimte terecht, een doorlopende en bijzonder ruime zone van 40 m² waar woon- en eetgedeelte naadloos in elkaar overvloeien. Centraal ligt de open leefkeuken, uitgerust met alle hedendaags comfort. Achteraan bevindt zich de eerste badkamer (4 m²) met ligbad, lavabomeubel, toilet en handdoekdroger. Via een schuifdeur stap je zo de zuid-georiënteerde stadstuin van 30 m² in — een fijne buitenplek midden in de stad.
Op de eerste tussenverdieping ligt een eerste slaapkamer van 13 m². Eén niveau hoger vind je een praktische berging/wasplaats (9 m²) met aansluitend de tweede badkamer (4 m²), voorzien van toilet en douchecabine. De eerste en de tweede verdieping hebben dezelfde indeling, telkens met een slaapkamer van 15 m² aan de voorzijde en een slaapkamer van 10 m² aan de achterzijde.
Ben je op zoek naar een royale gezinswoning met ruimte op elke verdieping? Mis deze kans niet!
Bewoonbare opp. 188 m² ref.: bruto vloeropp. EPC. Voor meer info of een gratis schatting surf naar www.hansimmo.be














































