Woning
€ 429.000
Drie Eikenstraat 165, 2650 EDEGEM
- 3
- 1 badkamers
- 160 m²
- 155 m²
- 1 garages
Instapklare bel-etage (160 m²) met 3 slaapkamers en tuin (80 m²) in Edegem.
Instapklare bel-etage (160 m²) met 3 slaapkamers en tuin (80 m²) in Edegem.
Het pand is gunstig gelegen nabij het centrum. Het openbaar vervoer is alomtegenwoordig en met de wagen bereik je de snelweg en centrale verbindingswegen in een mum van tijd. Verder zijn er tal van supermarkten, scholen en sportgelegenheden te vinden in de nabije omgeving.
De woning is goed onderhouden en is dankzij de gunstige indeling ideaal voor gezinnen. Het dak is geïsoleerd en de elektriciteit is AREI-conform. In de woonkamer is er een houtstoof aanwezig, maar je hebt hier ook de mogelijkheid om een warmtepomp te installeren.
Binnenkomen doe je in de inkom-/traphal met onder de trap een apart gastentoilet. Links heb je toegang tot de inpandige garage met automatische poort. Verder zijn er achteraan op het gelijkvloers nog een extra kamer/berging (7 m²) en wasplaats aanwezig. De onderhoudsvriendelijke tuin van 80 m² beschikt over een overdekt terras en is noord-georiënteerd.
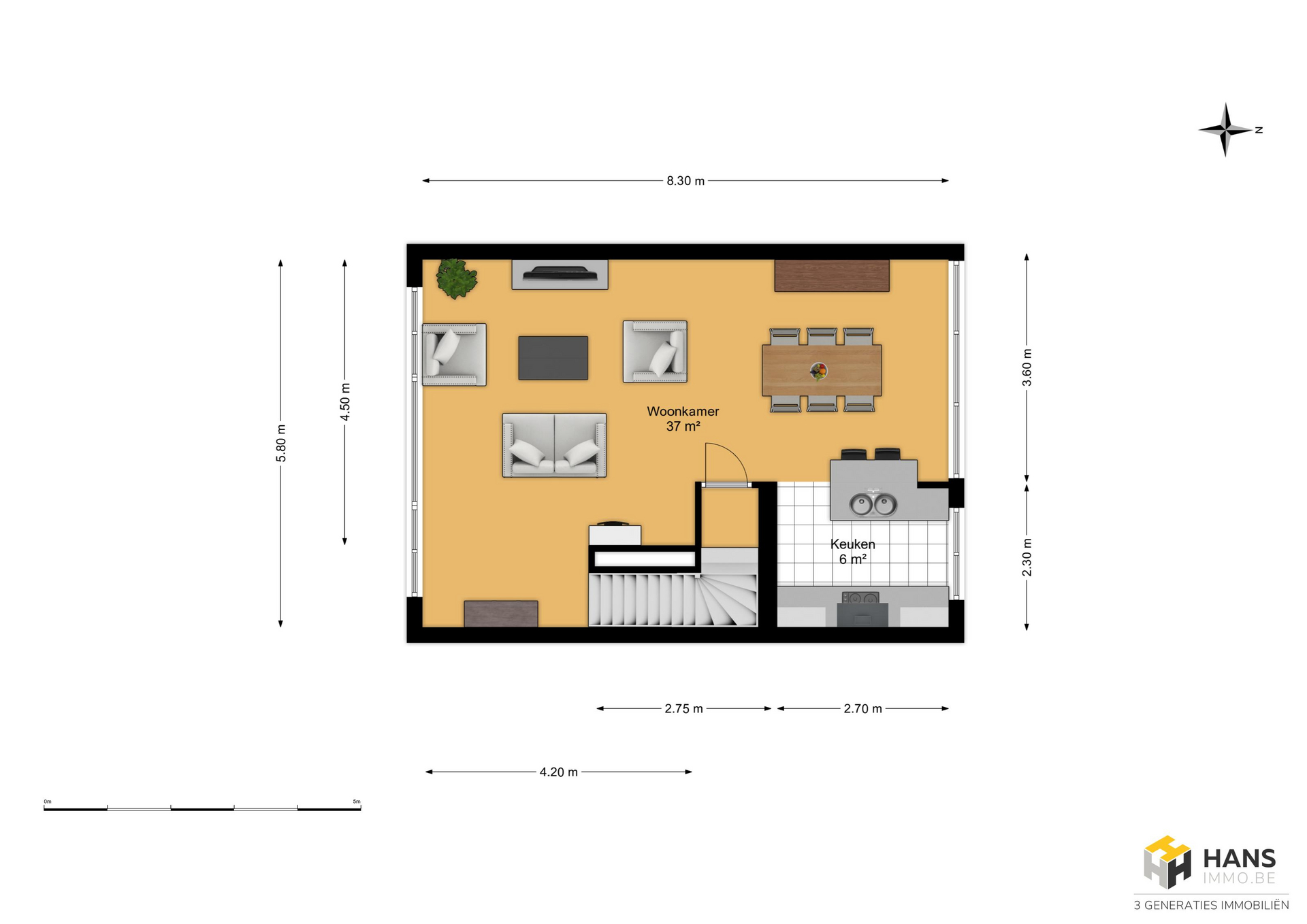
Op de eerste etage bevindt zich de lichtrijke leefruimte met achteraan de open keukenhoek, goed voor een oppervlakte van zo’n 46 m². De keuken is uitgerust met een kookvuur, dampkap, spoelbak, ingebouwde vaatwasser, combi-oven en een koelkast met vriezer. In het salon kan je tijdens de koude wintermaanden lekker warm vertoeven aan de houtstoof.
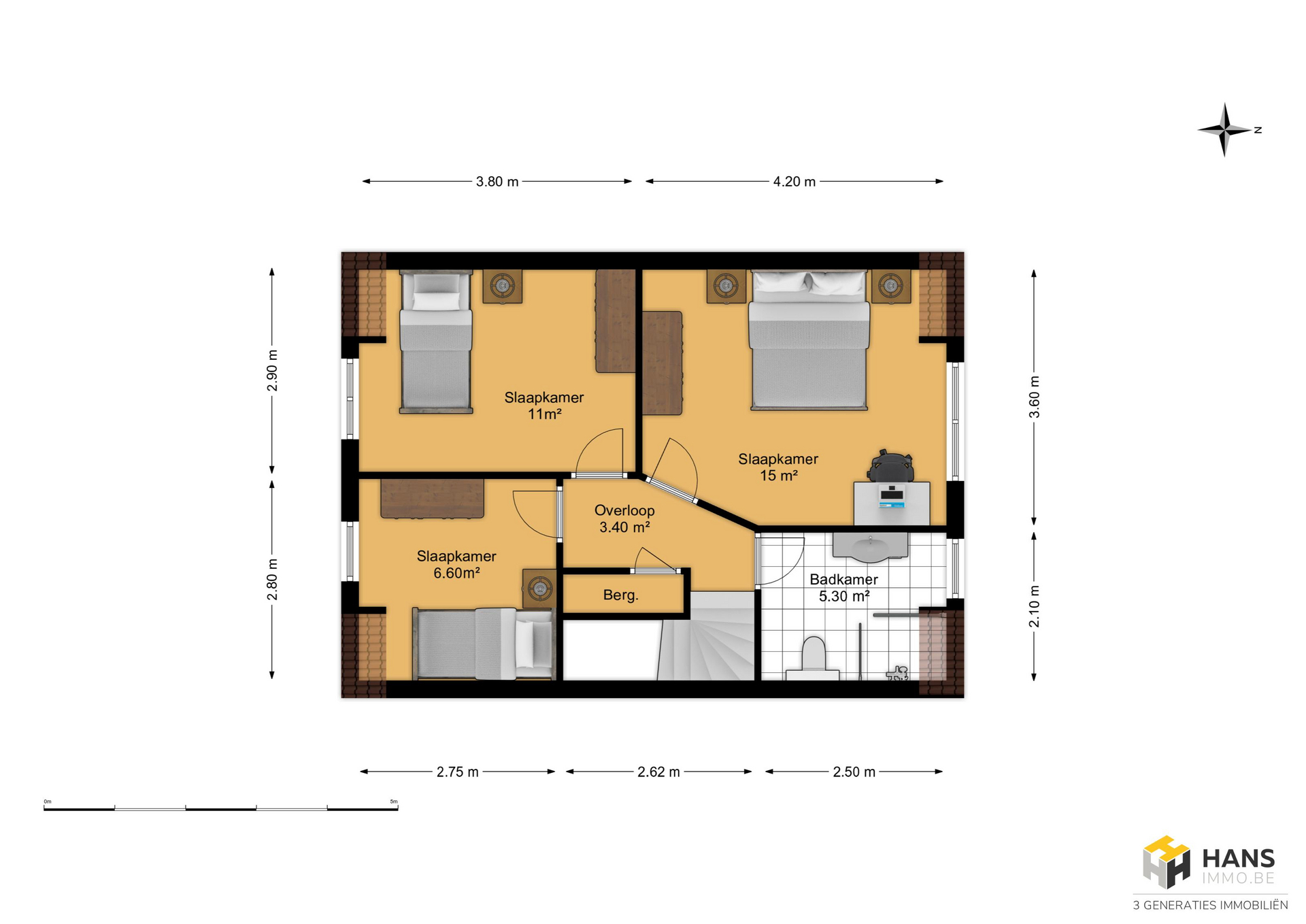
Op de bovenverdieping situeren zich de 3 slaapkamers van 7 m², 11 m² en 15 m² en de badkamer (5 m²) met ligbad/douche, lavabo en toilet.
Tot slot beschikt het pand nog over een bergzolder. Bewoonbare opp. 160 m² ref.: bruto vloeropp. EPC-certificaat. Voor meer info of een gratis schatting surf naar www.hansimmo.be
Het pand is gunstig gelegen nabij het centrum. Het openbaar vervoer is alomtegenwoordig en met de wagen bereik je de snelweg en centrale verbindingswegen in een mum van tijd. Verder zijn er tal van supermarkten, scholen en sportgelegenheden te vinden in de nabije omgeving.
De woning is goed onderhouden en is dankzij de gunstige indeling ideaal voor gezinnen. Het dak is geïsoleerd en de elektriciteit is AREI-conform. In de woonkamer is er een houtstoof aanwezig, maar je hebt hier ook de mogelijkheid om een warmtepomp te installeren.
Binnenkomen doe je in de inkom-/traphal met onder de trap een apart gastentoilet. Links heb je toegang tot de inpandige garage met automatische poort. Verder zijn er achteraan op het gelijkvloers nog een extra kamer/berging (7 m²) en wasplaats aanwezig. De onderhoudsvriendelijke tuin van 80 m² beschikt over een overdekt terras en is noord-georiënteerd.
Op de eerste etage bevindt zich de lichtrijke leefruimte met achteraan de open keukenhoek, goed voor een oppervlakte van zo’n 46 m². De keuken is uitgerust met een kookvuur, dampkap, spoelbak, ingebouwde vaatwasser, combi-oven en een koelkast met vriezer. In het salon kan je tijdens de koude wintermaanden lekker warm vertoeven aan de houtstoof.
Op de bovenverdieping situeren zich de 3 slaapkamers van 7 m², 11 m² en 15 m² en de badkamer (5 m²) met ligbad/douche, lavabo en toilet.
Tot slot beschikt het pand nog over een bergzolder. Bewoonbare opp. 160 m² ref.: bruto vloeropp. EPC-certificaat. Voor meer info of een gratis schatting surf naar www.hansimmo.be




























